As Built Drawing & Detail Engineering Design
Spesialis Gambar Teknis Struktur, Arsitektur dan MEP dengan tenaga ahli tersertifikasi
Jasa As Built Drawing & Detail Engineering Design
Dalam Pembangunan Infrastruktur, perlu diadakannya gambar teknis atau rencana gambar kerja detail. Yang tujuannya digunakan untuk pedoman atau acuan dalam pelaksanaan pembangunan, perencanaan, perawatan dan perbaikan sebuah bangunan. Gambar teknis Ini memiliki peran yang penting agar proyek berjalan sempurna sesuai rencana.
SIMBG.CO.ID sangat sadar akan kebutuhan ini dan untuk keperluan tersebut akhirnya menyediakan jasa gambar teknis arsitektur dan gambar teknis struktur. Seperti As Built Drawing & Detail Engineering Design (DED) untuk memenuhi kebutuhan perencanaan bangunan anda.
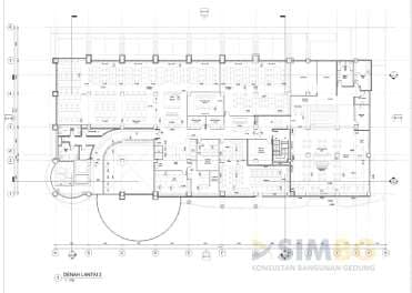
Gambar Teknis Arsitektur
Merupakan gambar detail bangunan gedung dalam hal arsitektur untuk merencanakan gambar situasi yang terdiri dari :
- Gambar rencana tapak
- Gambar denah
- Gambar potongan
- Gambar tampak dan detail bangunan
- Gambar spesifikasi teknis, meliputi spesifikasi umum dan spesifikasi khusus seperti (jenis, tipe dan karakteristik material/bahan yang digunakan secara lebih detail dan menyeluruh untuk komponen arsitektural)
- Pengesahan gambar teknis arsitektural dari dinas pekerjaan umum (PUPR)
Gambar Teknis Struktur
Merupakan gambar detail bangunan gedung dalam hal struktur. fungsi gambar teknis struktur adalah merencanakan perhitungan teknis yang terdiri dari :
- Teknis sederhana dan gambar rencanan fondasi , basemen kolom, balok, pelat lantai, rangka atap, penutup, penulangan pembesian, cor beton dan komponen gedung lainnya.
- Gambar detail struktur, spesifikasi teknis, meliputi spesifikasi umum dan spesifikasi khusus (jenis, tipe, detail karakteristik material, detail penulangan pembesian, cor beton dan menyeluruh untuk komponen struktural)
- Pengesahan gambar teknis arsitektural dari dinas pekerjaan umum (PUPR)
Mechanical Electrical Plumbing (MEP)
Gambar teknis MEP adalah merencanakan perhitungan teknis dan gambar rencana sistem sanitasi yang terdiri pengelolaan :
- Air bersih, air limbah, air hujan, drainase, dan persampahan,
- Perhitungan teknis dan gambar rencana detail sistem transportasi dalam gedung (vertikal/ horizontal)
- Perhitungan tingkat kebisingan dan getaran berdampak
- Gambar rencana teknis sistem jaringan listrik dari yang terdiri dari gambar sumber, jaringan dsb
- Perhitungan teknis dan gambar rencana detail sistem proteksi petir
- Perhitungan teknis dan gambar rencana detail sistem komunikasi, sistem data (IT)
- Perhitungan teknis dan gambar rencana detail sistem tata suara
- Perhitungan teknis dan gambar rencana building automation system
- Perhitungan teknis dan gambar rencana detail security sistem
- Perhitungan teknis dan gambar rencana detail gondola
- Perhitungan teknis dan gambar rencana detail sistem proteksi kebakaran (fire alarm, hidran, sprinkler, smoke extractor, presurrized fan dan APAR) yang disesuaikan dengan tingkat resiko kebakaran
- Foto copy akte pendirian perusahaan atau perubahannya
- Foto copy sertifikat tanah/ surat tanah
- Foto copy KKPR
- Foto copy NPWP perusahaan
- Survei lokasi
- Melakukan perencanaan, pengamatan gambar kontrak
- Proses pembuatan gambar
- Pengajuan gambar
- Distribusi ke personel lapangan
Kami siap dampingi kesuksesan bangunan anda!
Alasan mengapa urus izin bangunan bersama SIMBG.CO.ID
Dukungan Tenaga Ahli Tersertifikasi oleh HAKI & bagian dari PUPR
Berpengalaman Melayani seluruh pembangunan di Indonesia
Dilakukannya Survei menuju Lokasi pembangunan
Punya pertanyaan terkait Perizinan Bangunan?
Konsultasi Bersama CPR kami
Konsultasi nyaman dan perjanjian kerja fleksibel.
CPR kami akan mendampingi anda untuk sukseskan perizinan dengan mudah dan fast response
Mulai mengurus Izin Bangunan Gedung Bersama SIMBG.CO.ID!
Segala yang ingin Anda ketahui tentang Perizinan Bangunan Gedung bisa Konsultasi sekarang bersama Tenaga Ahli SIMBG






